HSH - Wohn und Atelierhaus
BGF: 300 m²
Auftraggeber: F. Rauchenecker, C. Rudolph
Zeitraum: 2004 - 2005

In der dörflichen Umgebung des bayrischen Allgäu entstand ein Atelier- und Wohnhaus für eine Goldschmiedin
und einen Bildhauer. Aus den Vorgaben des Bebauungsplans heraus wurde ein L-förmiger Gebäudekomplex
mit Satteldach, Ziegeldeckung und einer Teilunterkellerung errichtet. In dem nach Ost-West ausgerichteten
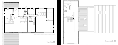
Hauptkörper sind im Ostflügel die Ateliers und Werkstätten untergebracht, im Westflügel der Wohnbereich
mit der Küche. Über dem Wohntrakt ist ein zweiter Baukörper in Nord-Süd Richtung aufgelegt, der nach
Süden hin auskragt. Darin liegt das Büro, nach Norden hin das Schlafzimmer, Bad und Umkleide.
Die beiden Baukörper sind im Inneren über einen offenen Wohnbereich mit integrierter Treppe und einem
großzügigen Luftraum verbunden.

Das Grundstück liegt am Dorfrand innerhalb eines städtebaulichen Mischgebietes Wohnen/(kleinere
Gewerbebetriebe) und schließt mit der Bebauungsgrenze ab, d.h. dass sich der Blick nach Süden
hin zu Auenwiesen und einem spektakulären Alpenblick öffnet. Im Bebauungsplan sind für die
Dorfranderweiterung regionale Typologien der dörflichen Umgebung festgelegt. Bauernhof und
Scheune dienen als Modelle für die Möglichkeit des vorgeschriebenen L-förmigen Gebäudegrundriss,
weitere Vorgaben sind das Satteldach mit Ziegeldeckung sowie die Fassadenmaterialien Holz oder Putz.

Die Kombination von Kragarm und Luftraum im Wohntrakt des Gebäudes ermöglicht es,
die verschiedenen Funktionen des Wohnens und Arbeitens in ein räumliches Kontinuum einzubinden
– wie z.B. die visuelle und räumliche Verbindung der Wohnküche im Erdgeschoss und der Arbeitszone im
Obergeschoss über Luftraum und Treppe. Das Nebeneinander von unterschiedlichen Funktionen und
räumlichen Qualitäten produziert gleichzeitig eine Vielfalt von Beziehungen und Atmosphären: so ist
z.B. vom Treppenpodest aus ein gleichzeitiger Ausblick über das Obergeschoss zu den Alpen und über
die Wohnküche zur überdachten Wohnterrasse und zum Garten möglich.



Über zwei Schalträume werden Innen- und Außenraum miteinander verzahnt: Im Obergeschoss
lässt die Wohnterrasse zwischen Atelier und Wohntrakt für Nachbarn und Anwohner den Blick zu den
Alpen frei, während die Gartenterrasse unterhalb des Kragarms Wohnraum und Garten verbindet. Kubatur
Unterhalb des auskragenden Körpers wird der "Abdruck" der sich darüber befindlichen als künstlicher
Garten inmitten des ansonst wild überwucherten Grundstücks angelegt. Dieser künstliche Boden
befasst sich mit dem Thema Grenze und Inlays. Letztendlich lässt sich auch der gesamte Baukörper
des Obergeschosses durch die Nord-Süd-Ausrichtung und die raumgroße Verglasung der Südfassade
als Schwellenzone, als „Fernrohr“ zu den Alpen interpretieren.

Die Materialität der beiden Baukörper zitiert die regionaltypische Kombination von vertikalen
Holzfassaden und großen Putzflächen und greift außerdem Elemente des Scheunen- und Industriebaus
der unmittelbaren Umgebung auf. Das traditionelle Prinzip, in der die Putzfassade für den Wohnbereich
des Bauernhauses und die Holzfassade für Scheune oder Gewerbe steht, wird hier umgekehrt. Hier ist
der gewerbliche Teil massiv (Hauptkörper des EG), der Wohnbereich dagegen mit einer leichten Holzfassade
versehen (aufgelegter Nord-Süd-Körper).


























