HSH - E-werk (Umbau) Berlin
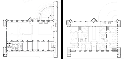
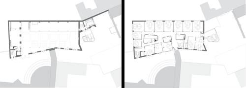
Aufgabe: Umbau E-werk Abspannwerk Buchhändlerhof zum IT-Unternehmen und Event-Location
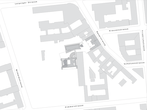
Lage: Mauerstraße 78/80, Berlin
BGF: 13.000m²
Auftraggeber: spm - real estate
Bauzeit: 2004 - 2005
Das historische Abspannwerk Buchhändlerhof (1924-28, Architekt Hans Heinrich Müller) erlangte in den 1990er Jahren
internationale Bekanntheit durch seine Zwischennutzung als Techno-Club E-Werk. Die Anlage in Berlin-Mitte gilt als
ein herausragendes Beispiel der Industriebaukultur der 1920er Jahre. Von März 2004 bis Mai 2005 wurde es nach
Plänen von Hoyer Schindele Hirschmüller zum Firmensitz eines IT-Unternehmens umgebaut. Den geschlossenen und
autonomen Charakter des technischen Bauwerks galt es zu verwandeln in ein lichtes, modernes Bürogebäude, das
sich zur Stadt hin öffnet. Die besondere Atmosphäre des Industriedenkmals war zu bewahren und die neue Nutzung
ästhetisch und funktional in das Ensemble zu integrieren.

1886 begann der Bau des Buchhändlerhofes als zweites Berliner Blockkraftwerk. Die verwinkelte
Parzelle in der friedrichstädtischen Erweiterung lag damals noch auf sumpfigem Gelände, was eine
Pfahlgründung erforderte. Der Zugang zum Kraftwerk erfolgte von der Wilhelmstraße über den Hof der
Vereinigung der Berliner Buchhändler, von dem die Anlage ihren Namen erhält. 1924-1928 wurde das
bestehende Blockkraftwerk nach Plänen des Architekten Hans-Heinrich Müller zum hochmodernen
Abspannwerk umgebaut und in den Folgejahren mehrfach verändert. Der nördliche Teil der Anlage
wurde in Teilen erhalten, in die Höhe erweitert und die Fassade wurde neu aufgeteilt. Der südliche
Bauteil wurde abgerissen und neu gebaut.
In den Bombardements des zweiten Weltkriegs wurde die Gebäudesubstanz, abgesehen von der
Stahlkonstruktion, stark zerstört, so dass das Abspannwerk nach dem Krieg nicht mehr genutzt
und im Zustand der Ruine belassen wurde. Erst nach dem Fall der Mauer wurde das Abspannwerk
von der Techno-Szene wieder entdeckt, und das E-Werk wurde bald darauf Anfang der 90er Jahre
zu einem der bekanntesten Techno-Clubs Europas. Die großen Hallen funktionierten dabei wie
hermetisch abgeriegelte Bunker unter künstlichen Licht und künstlicher Atmosphäre, deren
Fremdheit für die Besucher einen klaren Kontrast zum Alltag der Stadt darstellte. Später wurden die
großen Hallen für einige spektakuläre Theaterinszenierungen genutzt.
Gegen Ende 1999 wurde die Ruine endgültig für den Publikumsverkehr geschlossen und zwei
Jahre später von der Bewag an SPM - Real Estate verkauft. Der Baubeginn von Restaurierung
und Umbaus des ehemaligen E-Werk zum neuen Firmensitz des Unternehmens erfolgte drei Jahre
später, im Juni 2004.






Während andere Abspannwerke in Kontakt zum Stadtraum standen, erhielt die
Anlage des Buchhändlerhofes keinen direkten Bezug zur Straße und wuchs zwischen Mauerstraße,
Zimmer-, Wilhelm- und Leipziger Straße ins Innere der Parzelle. Um das gesamte Programm dennoch
auf dem engen Grundstück zu organisieren, wurde die Anlage aufgestockt, so dass sie weit über die
bestehende Bebauung hinausragte. Diese Ausgangssituation, in der der Komplex als quasi autonomer
Raum zwischen zwei angrenzenden Brandwänden keine Kommunikation mit dem Stadtraum einging,
wurde durch die Zerstörungen des zweiten Weltkriegs umgekehrt. Von jetzt an trat die Anlage als
freigebombte Industrieruine auf einmal städtebaulich in Erscheinung und erhielt den Charakter eines
Monuments.
Diese „städtebauliche Freistellung“ des Abspannwerkes als das höchste Gebäude im unmittelbaren
Stadtkontext (zu dem auch das Bundesfinanz- bzw. ehemalige Reichsluftfahrtsministerium gehört)
bleibt aufgrund der vereinbarten Abstandsflächenregelung weiterhin erhalten.






































