HSH - Neubau Wohngebäude, Auguststraße 62, Berlin
Aufgabe:Neubau eines Wohngebäudes
Lage: Auguststraße 62, Berlin
BGF: 1.250m²
Auftraggeber: privat
Fachplaner: Ing. Büro Unterberg
Zeitraum: 1999 - 2001
Das Wohnhaus in der Auguststraße liegt in der Spandauer Vorstadt in Berlin-Mitte, eingebettet in eine
historisch gewachsene Umgebung aus der Vorgründerzeit (ca. 1850). Kennzeichnend für diesen Stadtteil
sind die mehrgeschossigen, stuckverzierten Altbauten. Das Viertel ist heute als Flächendenkmal geschützt.
HSH Architekten haben die Charakteristika des Ortes aufgegriffen und neu interpretiert.
Eine von HSH Architekten in Auftrag gegebene Marktanalyse hatte ergeben, dass sowohl in den Alt- wie
auch in den Neubauten kaum mehrgeschossige Wohnungen vorhanden waren und dafür ein hoher Bedarf
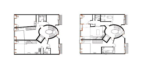
bestand. Das Gebäudevolumen des neuen Wohnhauses wurde daher auf fünf unterschiedlich große
Maisonetten aufgeteilt. Die einzelnen Wohnungen verzahnen und verschachteln sich ineinander. Die
zukünftigen Bewohner waren frühzeitig bekannt und konnten ihre individuellen Raumbedürfnisse in
die Planung einfließen lassen.

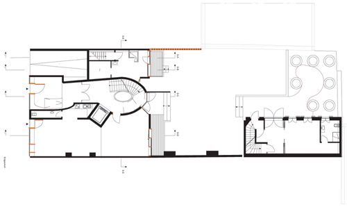
Ein Haupttreppenhaus mit elliptischem Grundriss verbindet die unterschiedlichen Ebenen und
inszeniert den Übergang zwischen öffentlichen und privaten Bereichen. Gleichzeitig verweist es
auf die bestehende Baustruktur der historischen Umgebung. Auch in einigen der Altbauten im
Stadtviertel finden sich Treppenhäuser mit elliptischem Grundriss.
Mittels seiner Außenhaut führt das Wohnhaus den Dialog mit der Umgebung fort. Die Plastizität
der historischen Stuckfassaden wurde in eine moderne Formensprache transformiert und mit neuen
Funktionen bespielt: 70 Zentimeter tief, integriert die Fassade Austritte, Balkone, Doppelflügelfenster,
Schiebeelemente aus Holz sowie innen liegende Regale. Im Zusammenspiel mit Vor- und Rücksprüngen
entstehen sensibel austarierte Variationen, die Fassade zu öffnen, zu schließen und zu durchschreiten.
Die Außenhaut wird zu einer Filterschicht zwischen Innen- und Straßenraum. Weiße Linien zeichnen die
Umrisse der einzelnen Wohnungen nach.

































