HSH - Case Study Roof 04
BGF: 650 m²
Zeitraum: 2006 - 2007

Ein Dachgeschoss-Rohling zwischen der Berliner Stadtautobahn und dem Lietzensee wird derzeit nach
Plänen von HSH Hoyer Schindele Hirschmüller ausgebaut. Dabei sollen der großzügige Raumeindruck
und die Kubatur des Bestandes im Wesentlichen erhalten bleiben. In einem offenen Grundriss wird
durch Höhenversprünge, eine eingestellte Galerieebene und eingeschnittene Dachterrassen eine
Zonierung in Bewegungsräume und Ruhebereiche vorgenommen. Auch die beiden Wohneinheiten sind
nur durch eine Terrassegetrennt. So war es möglich, die Länge des Dachgeschosses durch einen Gang
entlang der Brandwand erlebbar zu machen.
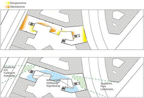
Durch einen differenzierten Innen-Außen-Bezug werden die jeweiligen Qualitäten der Außenräume betont.
Die beiden Straßenfassaden bestechen vor allem durch den Ausblick über die Stadt, auf der einen Seite
zum Funkturm, auf der anderen zum Lietzensee. Hofseitig bieten sich dagegen geschützte Außenbereiche an.
Die Dachlandschaft wird hier mehrfach aufgebrochen. Die Terrassenfläche auf dem Treppenhauskörper der
Riehlstraße ist über eine Galerieebene erreichbar.
































