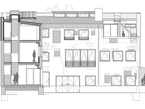
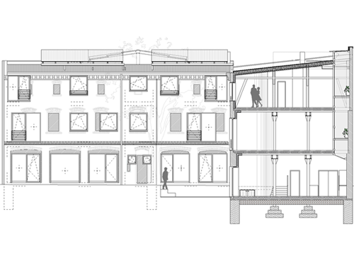
Lecker Essen in Kreuzberger Lofts (Umbau) - Ratibor Straße, Berlin
Aufgabe: Sanierung einer Remise zu zwei Townhäusern, Kochstudio, Wohn- und Arbeitsebene
Lage: Ratiborstraße 3, Berlin-Kreuzberg
BGF: 974 m²
Auftraggeber: privat
Fachplaner: HU-Tragwerk
Brandschutz Peter Stanek
Zeitraum:2011 - 2014









































